ASIMETRÍA ADYACENTE
Vélez-Málaga, Málaga
El contexto, la proximidad y un protagonista industrial.
El S.XIX representó la edad dorada para la industrialización de la provincia de Málaga, dejando vestigios de esta época en la capital de la Axarquía. La transformación del borde oeste de la ciudad, limítrofe con la carretera A-356, donde la actividad industrial predominaba, marcó un cambio significativo. Sin embargo, no será hasta la primera década de los 2000 cuando la expansión urbana destruirá las edificaciones industriales para dar paso a una nueva trama de calles anchas, arboladas y grandes zonas verdes, sepultando los restos de la era agrícola e industrial.
A pesar de este cambio, algunos elementos de esa época siguen en pie, rompiendo la monotonía de solares, parques y asfaltos. Estos elementos se imponen en el territorio como protagonistas que narran una historia de progreso para el municipio. Las chimeneas de ladrillo cerámico, que pertenecieron a las antiguas fábricas de aceite, orujo y azucareras, son testigos de ese pasado industrial.
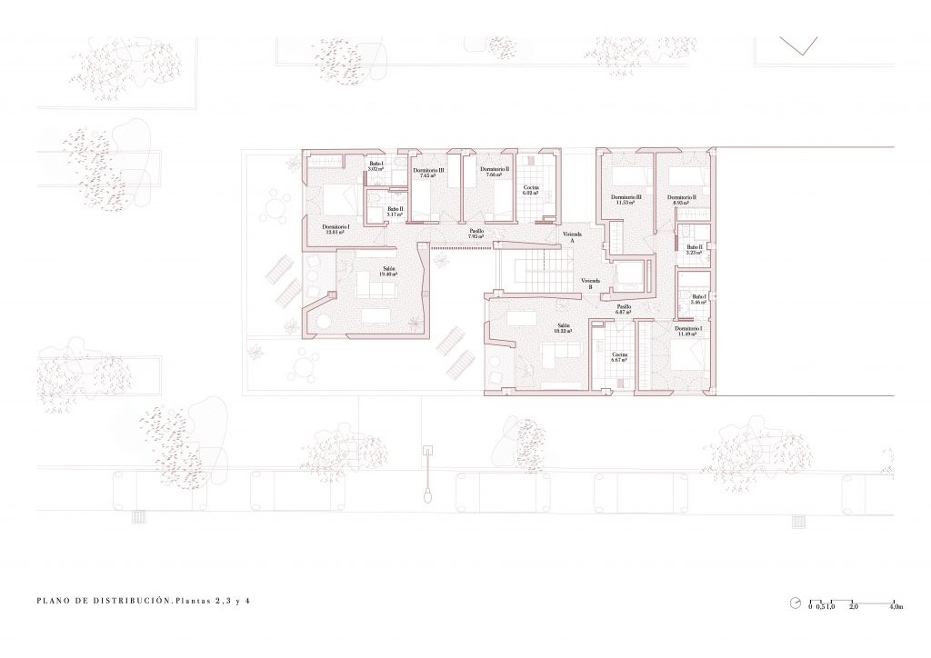
Uno de estos símbolos se encuentra en la esquina norte de la parcela proyectada. La proximidad entre la chimenea y el solar, junto con la materialidad y verticalidad de la estructura, fueron los elementos que inspiraron la concepción del proyecto. Las viviendas, ubicadas en cada planta, se dividen en dos volúmenes en forma de L, que aparentan chocar, pero en realidad establecen una relación de proximidad y cuasi simetría.
Las cinco plantas del edificio se elevan a una cota similar a la coronación de la chimenea, con dos grandes volúmenes blancos separados por el núcleo de comunicación vertical. En ellos se distribuyen las ocho viviendas, cuatro en cada uno.
Los volúmenes, revestidos en blanco, se perforan y decoran con baldosas cerámicas, creando un diálogo entre el minimalismo y la modernidad, mientras rinden homenaje al pasado industrial de la zona. Estas aperturas generan espacios exteriores para las viviendas, formando sus terrazas.


















