A LA ORILLA DEL MAR
Torre del Mar, Málaga
La luz y el mar como generador del espacio.
Torre del Mar es un punto de referencia en la Costa del Sol, un núcleo urbano estrechamente ligado al borde marítimo y a la tradición pesquera y agrícola de la zona. En este punto de la línea costera, nos encontramos con una burbuja climática, ya que la comarca de la Axarquía se caracteriza por ofrecer a sus habitantes un clima templado, muy cercano al tropical. Por ello, encontramos tonalidades de color que van desde el verde de las hojas de los cultivos tropicales, como el mango o el aguacate, hasta el ocre y los tonos amarillos de sus tierras y orillas, pasando por el blanco de la espuma del mar.
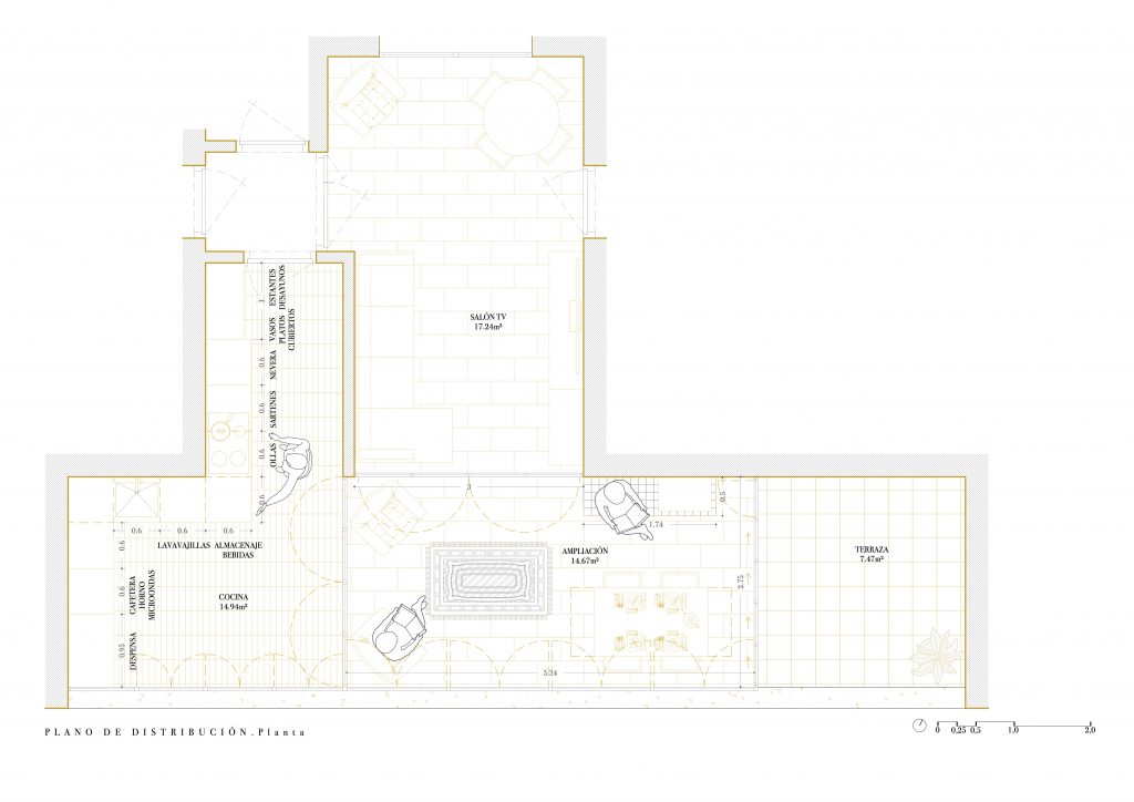
Lo mismo ocurre en la vivienda objeto de intervención en este proyecto, un ático con vistas al mar. Por motivos urbanísticos, esta vivienda cuenta con solo dos habitaciones, más una tercera que se añadió tras una ampliación. El objetivo de esta propuesta es ampliar el salón-comedor hacia la terraza orientada al este.
Esta orientación ofrece la ventaja de disfrutar de mucha luz durante el día, sin sufrir el calor excesivo que produce la orientación oeste. La nueva estancia se proyecta como un espacio de captación de luz y apertura al paisaje marítimo que flanquea la vivienda.
La orilla del mar y la espuma de las olas se cuelan en el interior de la vivienda, reflejadas en azulejos vidriados de color amarillo y blanco. Una alfombra de mármol blanco pulido refleja todas las tonalidades y colores que nos ofrece el paisaje.

























